26
$749,000 Sale
Listed 3 days ago
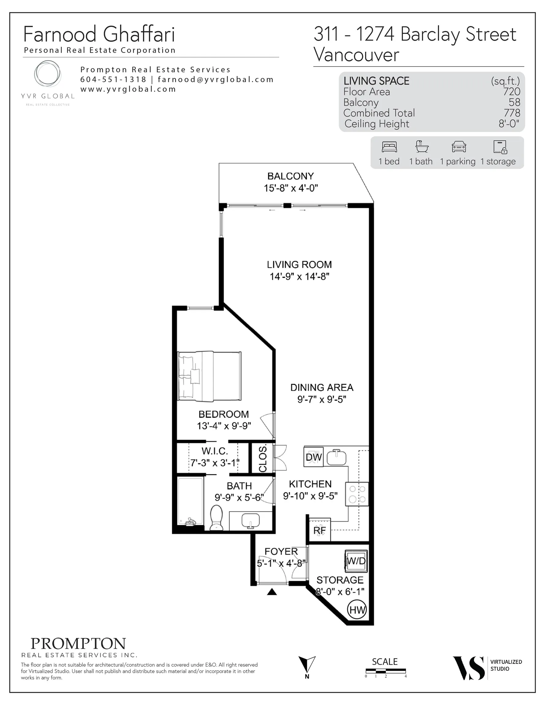
311 1274 Barclay Street
· 1
· 1
· -
· 720
Key Facts
Key facts for 311 1274 Barclay Street
Property Type
Condo, Other
Parking
-
MLS #
R3057592
Size
720 sqft
Basement
None
Listed on
-
Lot size
-
Tax
$1,955.48 /yr
Days on Market
-
Year Built
1980
Maintenance Fee
$397.32 /mo
Description
Welcome to Unit 311 at 1274 Barclay Street - a beautifully renovated one-bedroom in a fully rain-screened and upgraded building in Vancouver's West End. This spacious home features wide plank oak floors, a custom kitchen with high-end appliances, and a sleek bathroom with marble counters and a walk-...in shower. Enjoy peace of mind with new windows, updated window coverings, and a brand-new 58 sq.ft. covered balcony with new railings. One of the largest one-bedroom units in the area, offering quality, comfort and an unbeatable location.
Similar Properties (No results)
Room Types
Foyer
-
Dimensions 4'8 x 5'1
23.72 sqft
Kitchen
-
Dimensions 9'5 x 9'10
92.6 sqft
Dining Room
-
Dimensions 9'5 x 9'7
90.24 sqft
Courtesy of: Prompton Real Estate Services Inc.